Будинок про який ви мріяли, Ближні Яківці.

220000 $
Код об'єкта: 39228
Район:
Яківці
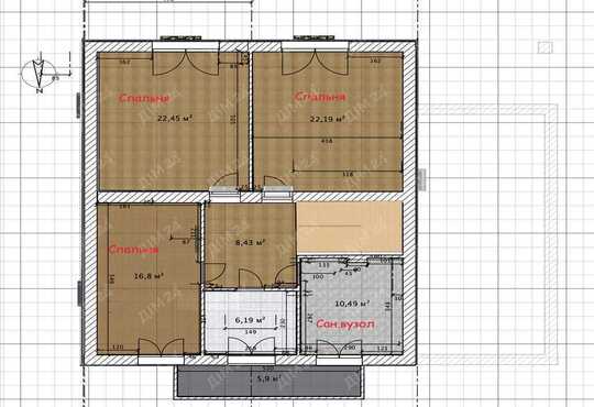
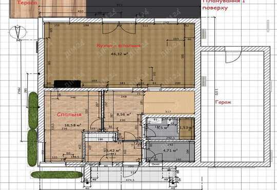
Кімнат:
4
Загальна площа:
180 кв.м
Житлова площа:
78 кв.м
Площа кухні:
46 кв.м
Поверховість:
2

Опис

У продажу багато будинків, та мало таких, де дійсно все зроблено з комфортом для майбутніх мешканців.

Продається двоповерховий будинок в Яківцях - 180 м2, спроєктований у сучасному стилі.  

Власники  будували  для себе та використовували при будівництві лише якісні матеріали відомих брендів.

Коробка збудована у 2021 році з газоблоку AEROC, опорна стіна з цегли. Перекриття з/б плити. У тому ж році перекритий дах, німецькою черепицею Benders з гідро- та паро - бар"єрами.

У 2022 році зроблені всі внутрішні чорнові роботи: на першому поверсі прокладена тепла підлога, залита якісна стяжка та зроблена чистове тинькування.

Будинок під"єднано до електромережі, виділена потужність 20 кВ з трьох фазним лічильником, та встановлено електрокотел, газ по вулиці є можливість приєднатися. Прокладено труби для каналізації та виведено в септик на вулицю. Вода з власної свердловини, при цьом  центральний водопровід по межі ділянки, за бажанням, є можливість приєднатися.  

Проєкт будинку робився під індивідуальне замовлення з внесенням корегувань та покращень власниками особисто. Планування ідеально продумано для комфортного проживання з урахуванням усіх сучасних потреб та можливо пристосувати для ваших. Всі кімнати світлі та практичні, на першому поверсі гостьова спальна та три спальні на другому. Простора кухня - вітальня з каміном,  закладено комунікації під острівець на кухні, має вихід на терасу та задній двір.

На сьогоднішній день ведуться внутрішні ремонтні роботи!  

Територія огороджена по периметру,  загальна площа ділянки 10 соток з можливістю виходу на дві вулиці.

Запрошую на перегляд,  будинок витримає будь-які перевірки на якісь, приходьте та переконайтесь в цьому!

Дмитро
Дім 24
Показати телефон
(066) 102-50-02