Двокімнатна квартира в новобудові

Двокімнатна квартира в новобудові Двокімнатна квартира в новобудові Двокімнатна квартира в новобудові Двокімнатна квартира в новобудові Двокімнатна квартира в новобудові
33000 $
Код об'єкта: 39868
Район:
Боженка
Кімнат:
2
Загальна площа:
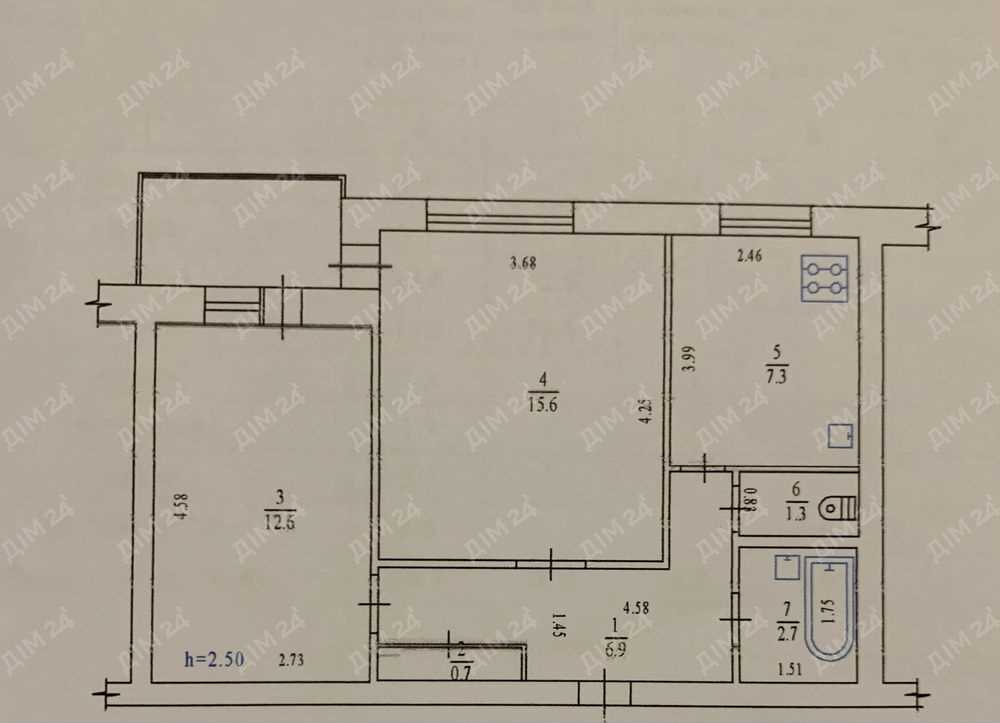
69 кв.м
Житлова площа:
37 кв.м
Площа кухні:
13 кв.м
Поверх:
8
Поверховість:
10

Опис

У продажу 2 кімнатна квартира в р-ні зупинки "Склозавод".


* Розташована на 8 поверсі 10 поверхового нового будинку.

* Загальна площа 69 кв.м, дві окремі кімнати, простора кухня 13 кв.м.

* Два санвузли

* Автономне опалення (2 контурний котел входить у вартість квартири).

* У під`їзді 2 ліфти - вантажний та пасажирський, цілодобове відеоспостереження.


Будинок будується за новими технологіями, навісний фасад, що вентилюється.

Запланована здача будинку 2024р.

Телефонуйте! Подробиці – за телефоном.


Людмила Олексіївна
Приват Житло
Показати телефон
(095) 030-03-02